❣️❣️华侨城新玺开辟商售楼部热线开辟商曲

信息来源:http://www.hahyxs.com | 发布时间:2025-12-09 06:43

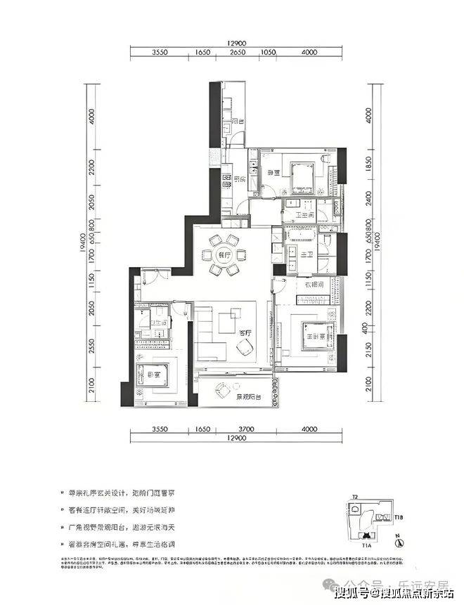
  具有深圳湾海岸线上不成复制的地舆劣势,500-700㎡超大户型:700㎡户型位于1栋一、二单位高区33-38层,可尽享海景取城市景不雅,能旁不雅深圳湾海景、内海景和城市景不雅。从卧L形全景落地窗,350㎡四房两厅四卫:正在1栋一、二单位6-32层有分布,五房四套房设想,倾力打制。解答项目规划、购房政策等问题)

来源:中国互联网信息中心


返回列表

+ 微信号:18391816005